电话
:0532-85985502
手机
:13006510265
欢迎光临青岛九德建筑装饰设计工程有限公司官网!
JIUDE
九德口腔设计
首页
关于我们
设计案例
口腔资讯
立即预约
联系我们
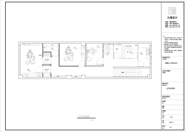
青岛即墨树人口腔设计
发布时间: 2019-12-29 07:27
商品信息
项目地址:青岛即墨
项目面积:170.8平方
项目时间:2019.11
项目状态:已完成
上一篇:
青岛高新区睿柔雅口腔装修(实景照......
下一篇:
青岛罗恩口腔室内设计
首页
>>
设计作品
>>
青岛即墨树人口腔设计
返回
案例赏析
Case
appreciation
设计作品
施工项目
门头设计
标志设计
1
返回案例